HOME
PORTFOLIO
12 W 21ST ST
30 W 26TH ST
12 W 27TH ST
401 PARK AVE S
6 E 32ND ST
AVAILABILITIES
NEIGHBORHOOD
NEWS
CONTACT
401 PARK AVE S
Back to list
Previous Property
Next Property
401 Park Ave S, New York, NY 10016
PROPERTY TYPE
Office
stories
12
BUILDING SIZE
250,000 SF
Max contig space
64,368 SF
TOTAL SPACE AVAILABLE
64,368 SF
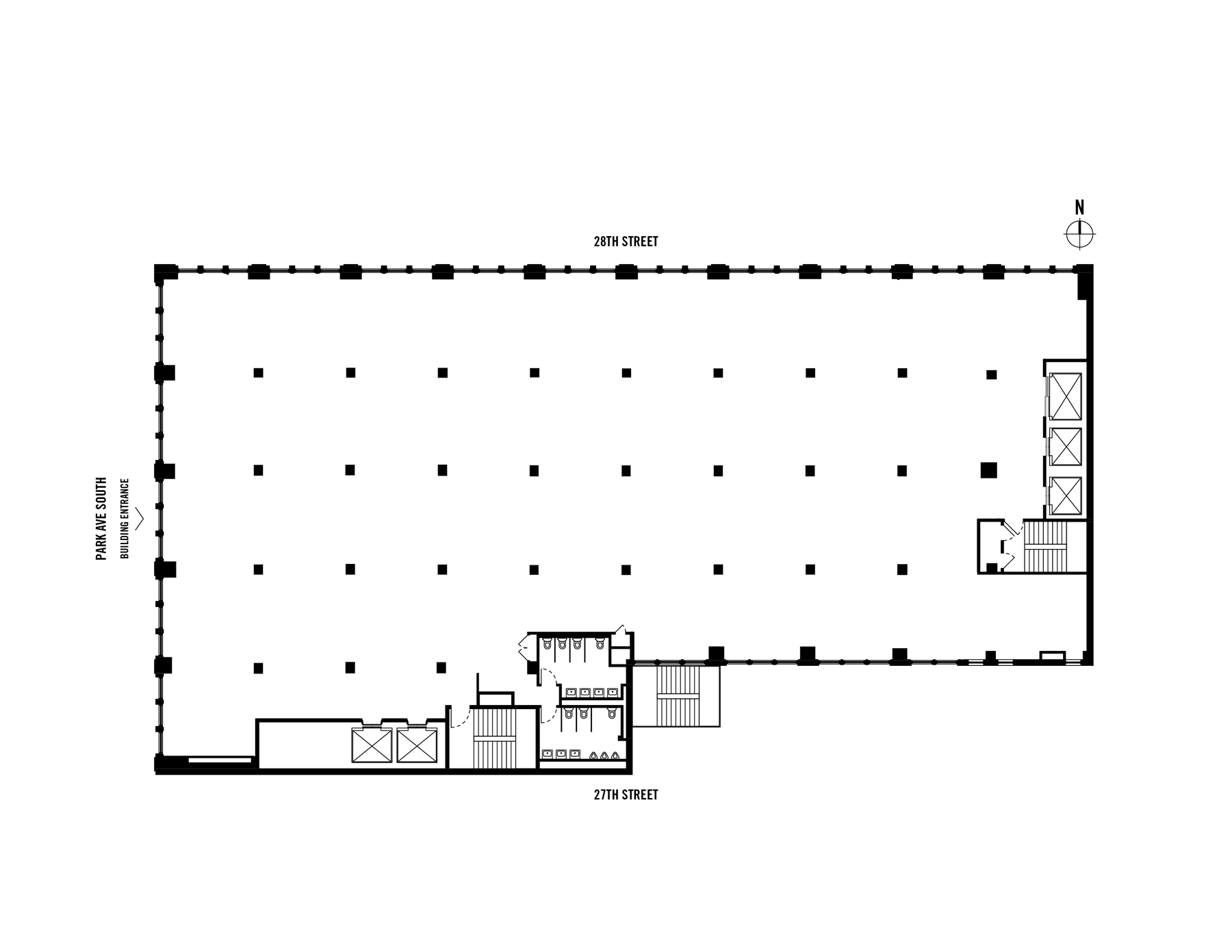
TYPICAL FLOOR SIZE
14,797 SF
DOWNLOAD TYPICAL FLOORPLAN
FOR MORE INFORMATION
Adam Weissleder
aweissleder@merprop.com